ZS Surveys: Hitting Tight Deadlines with BricsCAD and KTF Pointcloud

The Company

With over two decades of specialised experience, ZS Surveys stands as a prominent figure in the realm of land, measured building, and engineering surveying. At the heart of their sustained success is a deep-seated commitment to investing in the latest survey technologies and the continual professional development of their team.

Background

ZS Surveys migrated to BricsCAD in 2020 following a successful trial by the team. Having used other CAD software previously, they were looking for an affordable solution. Director Sean Smith told me “BricsCAD was a no-brainer for us. It was great value, had advanced features, was easy to pick up and we had no issues with transitioning from our previous CAD software”.

Implementation

Once the free 30-day trial had ended, ZS Surveys purchased a BricsCAD Pro license and immediately integrated it into their existing workflows. Other licenses were subsequently added when their old software expired to continue a seamless migration process.

Customer Support and Resources

The KTF Software team helped ZS Surveys to integrate the free KTF Pointcloud tool into their workflow to accelerate the drafting of 2D plans and elevations for measured building surveys. All the team are now using the tool.

Impact Of BricsCAD and KTF Pointcloud

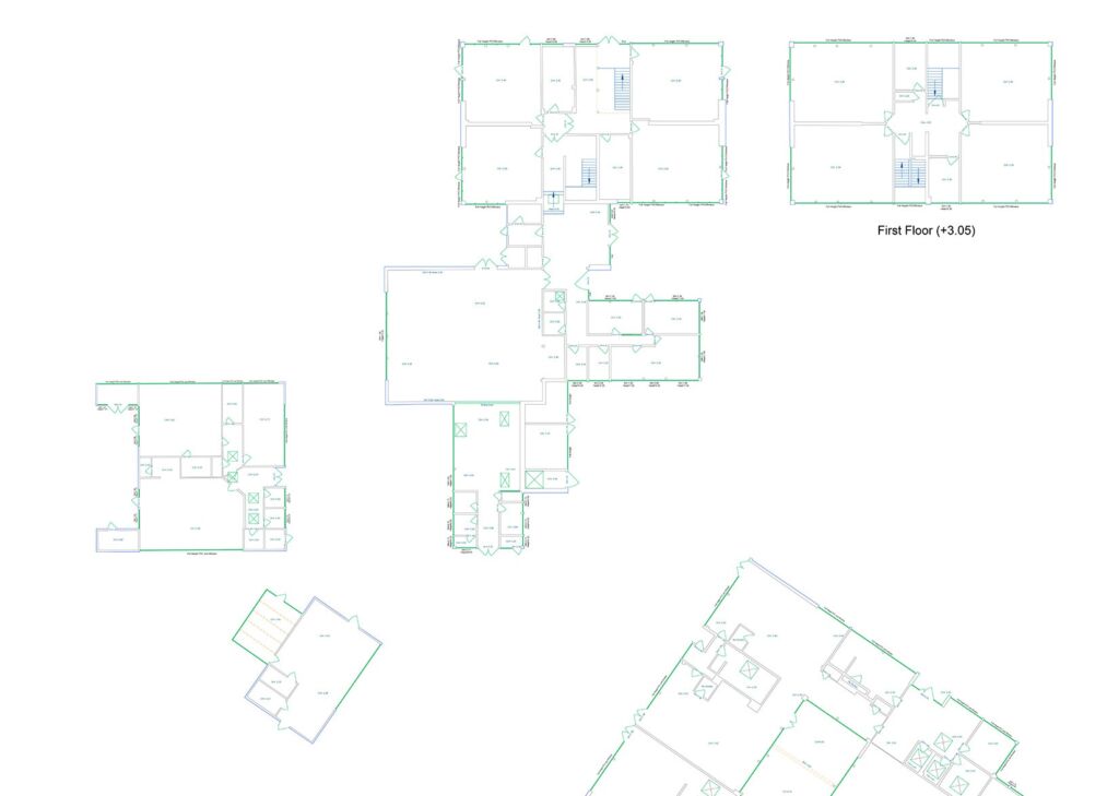
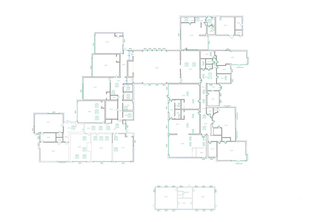
One of ZS Surveys recent projects required surveying 18 schools within a stringent timeframe, presenting a challenge in terms of volume and time.

BricsCAD and KTF Pointcloud played a pivotal role in enabling the company to efficiently transform the massive amount of data collected (around 5000 scans) to the final delivery of detailed CAD drawings.

Director Sean Smith told me “This was an important project for us and without the time saving efficiencies of your Pointcloud tool, I don’t think we could have made the deadline”.

The use of BricsCAD and KTF Pointcloud not only helped ZS Surveys to deliver within the challenging timeframe, but also provided outputs that exceeded client expectations in terms of quality and detail. This success has led to further business opportunities with their client, showcasing the long-term benefits of utilising such tools in surveying projects.

Conclusion

The successful transition of ZS Surveys to BricsCAD and KTF Pointcloud is a testament to the transformative power of the right CAD solutions in specialised fields, illustrating efficiency and innovation in the field of surveying.

Like ZS Surveys, you can take advantage of powerful CAD tools with an easy learning curve that can help you create detailed and accurate plans that are compatible with your customers.

Don’t let outdated software and workflows slow you down

Upgrade to BricsCAD TODAY

and take your architectural designs to the next level.

SHARE

Powered by DIT Innovations
Start Your Proof of Concept

We’ll review your requirements and confirm if a Proof of Concept is the right approach before getting started.

Make Sense of Your BricsCAD® Licensing

We’ll help you understand what’s active, where, and what to do next.

Book a Call